$1,180,000
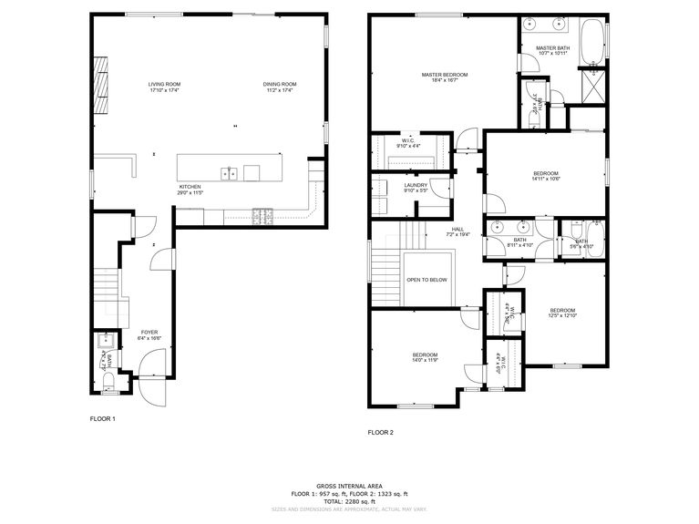
Welcome to Canton Ridge! Better-than-new, 4-bedroom home featuring beautiful amenities such as an incredible chef’s kitchen with extra long counter perfect for entertaining, hardwood flooring on main, tankless water heater, central vacuum and Air Conditioning! This beautiful home offers an open concept living spaces on main floor with living room,… Read Moreextra-large kitchen, and dining room perfect for gatherings. Primary bedroom has been upgraded with a custom walk-in closet and En-suite 5-piece bathroom. Spacious secondary bedrooms and Jack-N-Jill full bath upstairs. All bedrooms are equipped with ceiling fans. Enjoy a nice day outside in a fully fenced backyard with plumbed gas feature for the grill. 2-car garage has been upgraded with epoxy flooring. Amazing location within walking distance of great schools and multiple parks, close to all amenities of Mill Creek Town Center and Bothell. Quick access to Bothell-Everett Highway, I-5, and I-405.Read Less
Features
Bedrooms
4
Bathrooms
2.5
Square Ft.
2,370
Floors
2 Stories
Garages
2
Acres
.090 ac
Mortgage Calculator
Monthly Payment
$0
Perfect home finder
'VIP' Listing Search
Whenever a listing hits the market that matches your criteria you will be immediately notified.
Alina Araujo
Broker | Relocation Specialist | Certified Luxury Home Marketing Specialist | First Time Homebuyer Specialist

Please Select Date
Please Select Type
Confirm your time
Fill in your details and we will contact you to confirm a time.
Contact Form
Welcome to our open house!
We encourage you to take a few seconds to fill out your information so we can send you exclusive updates for this listing!






































